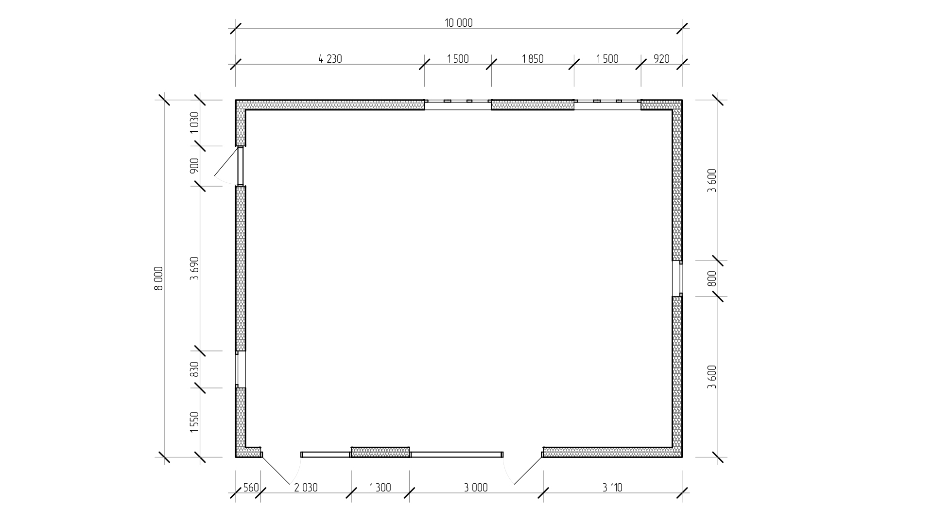
Дом «Простор 80» — это одноэтажный модуль с открытой планировкой и двусветным пространством общей площадью около 80 м². Полное отсутствие внутренних перегородок: никаких тесных комнат, только пространство, которое вы организуете под свои задачи. Двусветная зона высотой до 5,5 метра наполняет дом естественным светом и создаёт ощущение простора, а эркер добавляет архитектурную выразительность и дополнительное место для панорамного остекления. Дом идеален для глэмпингов премиум-класса, загородных резиденций на 6–8 человек, а также для тех, кто ценит лофтовую эстетику, работает удалённо и хочет создать уникальное пространство без компромиссов. Представьте, что вы собираете дом из точно подогнанных деталей по технологии «Остов Pro». Никакого бетона, шума и месяцев ожидания. Только чёткая геометрия и фирменные соединения. Это не игрушка. Это дом, который собирается как конструктор. В стоимость входит: • Изготовление полной корпусной комплектации (пол, крыша, стены, перегородки, опорные столбы, подготовка проёмов); • Высококачественная водостойкая фанера; • Крепёж и подробная инструкция по сборке; • План опорных точек (фундамента); • Удаленная поддержка конструктором в процессе сборки. Что остаётся выполнить вам: • Организация фундамента; • Утепление в процессе сборки; • Установка окон и дверей; • Монтаж инженерных коммуникаций; • Установка кровли, фасада.




